Проекты
Услуги
О компании
Контакты
8-800-550-18-92
Консультация
Избранное
Сравнение
Вход
Регистрация
Проекты
Услуги
О компании
Контакты
8-800-550-18-92
+7(926)-693-52-26
dom@abs.ru
Москва, ул. Южнопортовая,
д. 5 / стр. 2, здание 2-4-11
Индекс
115088
Избранное
Сравнение
Вход
Корзина
По типу строения
Дома
Бани
Хозяйственные строения
По назначению
Постоянного проживания
Дачные и садовые
Этажность
Одноэтажные
Двухэтажные
С мансардой
Особенности
С гаражом
С крыльцом
С терассой
С камином
Материалы
Комбинированные
Из бруса
Каркасные дома
Дома из газобетона
Деревянные дома
Стили
Баварский
Кантри
Минимализм
Райт (стиль прерий)
Скандинавский
Шале
Барнхаус
Английский
Хай-тек
Фьюжн
Эклектика
О компании
Группа АБС
Производство
Портфолио
Отзывы
Реквизиты
Интересно знать
Вопрос / ответ
Статьи
Новости
Домопедия
Строительство
Строительство
Зимнее строительство
Подготовка и надзор
Домокомплекты
Клееный брус
Проектирование
Цены на проектирование
Процесс проектирования
Технологии
Финансовые услуги
Кредит
Рассрочка
Страхование
Военная ипотека
Материнский капитал
Связаться с нами
8-800-550-18-92
dom@abs.ru
Индекс
115088
Москва, ул. Южнопортовая,
д. 5 / стр. 2, здание 2-4-11
Москва,
ул. Южнопортовая,
д. 5 / стр. 2, здание 2-4-11
Дачные дома
Дачные дома Форма дома прямоугольной формы - проекты, строительство под ключ
Фильтры
Фильтры
Категории
Дачные дома из бруса
Каркасные дачные дома
Дачные дома из бревна
Дачные дома из газобетона
Площадь
Площадь
Выбрано 0
Очистить
30
(1)
40
(3)
50
(6)
60
(4)
70
(7)
80
(18)
90
(15)
100
(11)
110
(7)
120
(8)
130
(17)
140
(5)
150
(14)
160
(11)
170
(4)
180
(6)
190
(10)
210
(10)
220
(4)
230
(4)
240
(1)
250
(3)
260
(1)
270
(2)
280
(2)
290
(1)
310
(2)
320
(3)
400
(1)
Этажей
Этажей
Выбрано 0
Очистить
двухэтажные
(26)
одноэтажные
(48)
полутораэтажные
(107)
трехэтажные
(3)
Стиль
Стиль
Выбрано 0
Очистить
Барнхаус
(13)
Европейский
(1)
Немецкий
(3)
Райт (стиль прерий)
(1)
Русский
(6)
Скандинавский
(40)
Современный
(44)
Фахверк
(2)
Фермерский
(1)
Финский
(10)
Шале
(6)
Эклектика
(6)
Комнат
Комнат
Выбрано 0
Очистить
1
(6)
2
(8)
3
(28)
4
(37)
5
(21)
6
(11)
7
(3)
9
(1)
Количество спален
Количество спален
Выбрано 0
Очистить
1
(17)
2
(48)
3
(54)
4
(44)
5
(14)
6
(2)
7
(1)
Комплектации
Комплектации
Выбрано 0
Очистить
Базовая
(47)
Каркас Технониколь
(13)
Классический каркас
(13)
Люкс
(104)
Стандартная
(150)
Форма дома
Форма дома
Выбрано 1
Очистить
прямоугольной формы
квадратной формы
(38)
прямоугольной формы
(184)
С гаражом
С гаражом
Выбрано 0
Очистить
Да
(8)
Форма крыши
Форма крыши
Выбрано 0
Очистить
с большой крышей
(1)
с вальмовой крышей
(17)
с двускатной крышей
(102)
с комбинированной крышей
(12)
с крышей с окном
(10)
с мансардной крышей
(11)
с односкатной крышей
(2)
с плоской крышей
(1)
с полувальмовой крышей
(3)
с усложнённой крышей
(68)
с щипцовой крышей
(2)
С мансардой
С мансардой
Выбрано 0
Очистить
Да
(109)
Нет
(26)
с мансардой
(1)
Окна
Окна
Выбрано 0
Очистить
большие
(68)
витражные
(8)
панорамные
(36)
Отделка
Отделка
Выбрано 0
Очистить
без отделки
(112)
имитация бруса
(29)
искусственный камень
(59)
камень
(57)
клинкерная плитка
(10)
лицевой кирпич
(5)
покраска
(1)
сайдинг
(6)
фасадная штукатурка
(23)
фасадные панели
(25)
Серия
Серия
Выбрано 0
Очистить
Архитектор Карлсон
(54)
Голованово
(1)
Калужанка
(1)
Норвежец
(1)
Опалево
(1)
Стикеры
Стикеры
Выбрано 0
Очистить
Акция
(1)
Мы рекомендуем
(2)
Новинка
(3)
Хит продаж
(1)
Технология
Технология
Выбрано 0
Очистить
бревно ручной рубки
(5)
газобетонные блоки
(2)
каркас Технониколь
(3)
класический каркас
(3)
оцилиндрованное бревно
(9)
фахверк
(2)
С террасой
С террасой
Выбрано 0
Очистить
Да
(132)
Для узкого участка
Для узкого участка
Выбрано 0
Очистить
Да
(22)
С антресолью
С антресолью
Выбрано 0
Очистить
Да
(6)
Срок строительства дней
Срок строительства дней
Выбрано 0
Очистить
30
(2)
60
(45)
90
(50)
120
(8)
С двумя входами
С двумя входами
Выбрано 0
Очистить
Да
(110)
С эркером
С эркером
Выбрано 0
Очистить
Да
(31)
С гостиной
С гостиной
Выбрано 0
Очистить
Да
(172)
С жилой комнатой на 1 этаже
С жилой комнатой на 1 этаже
Выбрано 0
Очистить
Да
(140)
С камином
С камином
Выбрано 0
Очистить
Да
(18)
С котельной
С котельной
Выбрано 0
Очистить
Да
(54)
С крыльцом
С крыльцом
Выбрано 0
Очистить
Да
(159)
С кухней
С кухней
Выбрано 0
Очистить
Да
(107)
С навесом для авто
С навесом для авто
Выбрано 0
Очистить
Да
(8)
С печкой
С печкой
Выбрано 0
Очистить
Да
(103)
С сауной
С сауной
Выбрано 0
Очистить
Да
(20)
Со вторым светом
Со вторым светом
Выбрано 0
Очистить
Да
(36)
Длина
Длина
Выбрано 0
Очистить
3
(1)
5
(1)
6
(14)
7
(5)
8
(6)
9
(18)
9.3
(1)
10
(22)
11
(9)
12
(21)
12.3
(1)
13
(7)
14
(6)
15
(4)
16
(3)
17
(2)
Ширина
Ширина
Выбрано 0
Очистить
4
(1)
5
(2)
6
(4)
7
(9)
8
(18)
8.5
(1)
9
(23)
10
(20)
11
(16)
12
(11)
13
(7)
14
(8)
15
(1)
Площадь кухни ≈
Площадь кухни ≈
Выбрано 0
Очистить
9,16
(1)
9.15
(1)
10
(39)
20
(55)
30
(9)
40
(1)
50
(1)
Жилая площадь ≈
Жилая площадь ≈
Выбрано 0
Очистить
20
(6)
30
(7)
40
(10)
50
(13)
60
(10)
70
(10)
80
(6)
90
(4)
100
(3)
114,44
(1)
120
(1)
Габариты
Габариты
Выбрано 0
Очистить
10 на 10
(2)
10 на 11
(2)
10 на 12
(4)
10 на 13
(2)
11 на 12
(1)
11 на 13
(1)
11 на 14
(2)
12 на 12
(1)
12 на 14
(2)
14 на 9
(1)
3 на 5
(1)
5 на 7
(1)
6 на 11
(1)
6 на 7
(2)
6 на 8
(8)
6 на 9
(5)
7 на 10
(1)
7 на 11
(1)
7 на 8
(2)
7 на 9
(1)
8 на 10
(3)
8 на 13
(1)
8 на 8
(1)
8 на 9
(2)
9 на 10
(4)
9 на 11
(1)
9 на 12
(4)
9 на 13
(2)
Все фильтры
Сбросить фильтры
Количество позиций:
184 шт.
Выбрано:
Форма дома - прямоугольной формы
Сортировка:
По умолчанию
По умолчанию
Цена
Цена
Площадь
Площадь
Сортировка:
По умолчанию
По умолчанию
Цена
Цена
Площадь
Площадь
Выдача по:
20
60
50
40
30
20
10
5
1
2
3
...
10
Наименование
Артикул
Форма дома
Цена за метр
Цена
Количество
В корзину
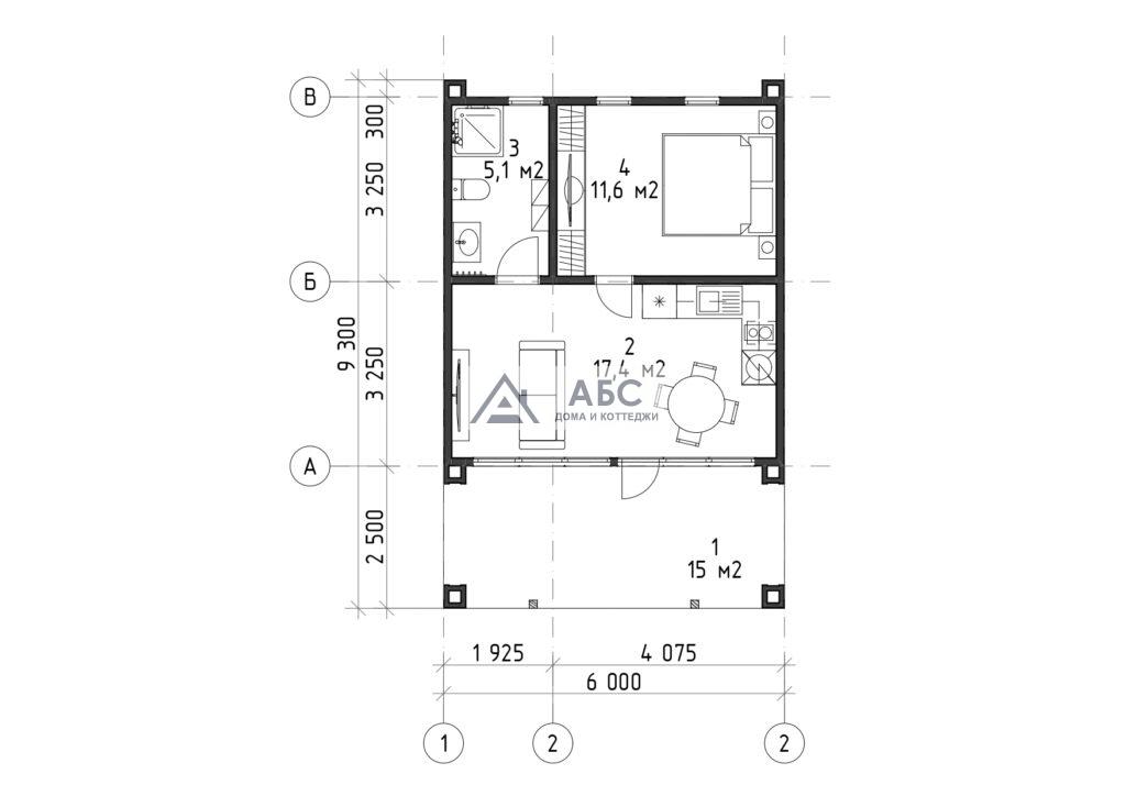
Проект дома "Бойд"
Быстрый просмотр
Площадь
107,25
Форма дома
прямоугольной формы
Цена за метр
73 533 ₽/м
2
Быстрый просмотр
107,25
прямоугольной формы
73 533 ₽/м
2
от 7 868 000 ₽
В карточку проекта
Проект дома "Блэквуд"
Быстрый просмотр
Площадь
85,6
Форма дома
прямоугольной формы
Цена за метр
60 118 ₽/м
2
Быстрый просмотр
85,6
прямоугольной формы
60 118 ₽/м
2
от 5 110 000 ₽
В карточку проекта
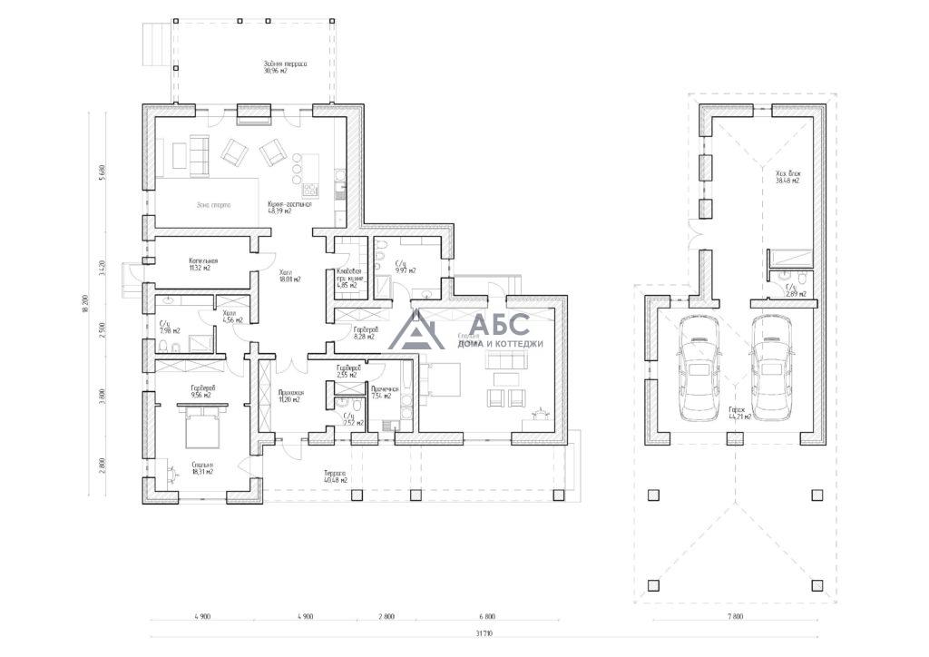
Проект дома "Болтон"
Быстрый просмотр
Площадь
151,83
Форма дома
прямоугольной формы
Цена за метр
56 801 ₽/м
2
Быстрый просмотр
151,83
прямоугольной формы
56 801 ₽/м
2
от 8 577 000 ₽
В карточку проекта
Проект дома "Вонт"
Быстрый просмотр
Площадь
218,95
Форма дома
прямоугольной формы
Цена за метр
41 454 ₽/м
2
Быстрый просмотр
218,95
прямоугольной формы
41 454 ₽/м
2
от 9 037 000 ₽
В карточку проекта
Проект дома "Шемблз"
Быстрый просмотр
Площадь
93,2
Форма дома
прямоугольной формы
Цена за метр
72 731 ₽/м
2
Быстрый просмотр
93,2
прямоугольной формы
72 731 ₽/м
2
от 6 764 000 ₽
В карточку проекта
Проект дома "Вудс"
Быстрый просмотр
Площадь
210,21
Форма дома
прямоугольной формы
Цена за метр
49 583 ₽/м
2
Быстрый просмотр
210,21
прямоугольной формы
49 583 ₽/м
2
от 10 412 400 ₽
В карточку проекта
Проект дома "Харпер"
Быстрый просмотр
Площадь
122,8
Форма дома
прямоугольной формы
Цена за метр
60 090 ₽/м
2
Быстрый просмотр
122,8
прямоугольной формы
60 090 ₽/м
2
от 7 331 000 ₽
В карточку проекта
Проект дома "Ирвин"
Быстрый просмотр
Площадь
246,53
Форма дома
прямоугольной формы
Цена за метр
46 502 ₽/м
2
Быстрый просмотр
246,53
прямоугольной формы
46 502 ₽/м
2
от 11 439 600 ₽
В карточку проекта
Проект дома "Шор"
Быстрый просмотр
Площадь
188,46
Форма дома
прямоугольной формы
Цена за метр
73 394 ₽/м
2
Быстрый просмотр
188,46
прямоугольной формы
73 394 ₽/м
2
от 13 798 000 ₽
В карточку проекта
Проект дома "Баллард"
Быстрый просмотр
Площадь
221,33
Форма дома
прямоугольной формы
Цена за метр
По запросу
Быстрый просмотр
221,33
прямоугольной формы
По запросу
По запросу
В карточку проекта
Проект дома "Бангор"
Быстрый просмотр
Площадь
95,9
Форма дома
прямоугольной формы
Цена за метр
60 263 ₽/м
2
Быстрый просмотр
95,9
прямоугольной формы
60 263 ₽/м
2
от 5 725 000 ₽
В карточку проекта
Проект дома "Бафф"
Быстрый просмотр
Площадь
205,11
Форма дома
прямоугольной формы
Цена за метр
По запросу
Быстрый просмотр
205,11
прямоугольной формы
По запросу
По запросу
В карточку проекта
Проект дома "Блант"
Быстрый просмотр
Площадь
194,83
Форма дома
прямоугольной формы
Цена за метр
По запросу
Быстрый просмотр
194,83
прямоугольной формы
По запросу
По запросу
В карточку проекта
Проект дома "Боллз"
Быстрый просмотр
Площадь
276,03
Форма дома
прямоугольной формы
Цена за метр
По запросу
Быстрый просмотр
276,03
прямоугольной формы
По запросу
По запросу
В карточку проекта
Проект дома "Бомонт"
Быстрый просмотр
Площадь
194,3
Форма дома
прямоугольной формы
Цена за метр
65 101 ₽/м
2
Быстрый просмотр
194,3
прямоугольной формы
65 101 ₽/м
2
от 12 629 500 ₽
В карточку проекта
Проект дома "Бонн"
Быстрый просмотр
Площадь
149,16
Форма дома
прямоугольной формы
Цена за метр
По запросу
Быстрый просмотр
149,16
прямоугольной формы
По запросу
По запросу
В карточку проекта
Проект дома "Брайен"
Быстрый просмотр
Площадь
174,5
Форма дома
прямоугольной формы
Цена за метр
73 443 ₽/м
2
Быстрый просмотр
174,5
прямоугольной формы
73 443 ₽/м
2
от 12 779 000 ₽
В карточку проекта
Проект дома "Брайтон"
Быстрый просмотр
Площадь
90,2
Форма дома
прямоугольной формы
Цена за метр
59 833 ₽/м
2
Быстрый просмотр
90,2
прямоугольной формы
59 833 ₽/м
2
от 5 385 000 ₽
В карточку проекта
Проект дома "Бьюфорд"
Быстрый просмотр
Площадь
49,1
Форма дома
прямоугольной формы
Цена за метр
59 822 ₽/м
2
Быстрый просмотр
49,1
прямоугольной формы
59 822 ₽/м
2
от 2 931 300 ₽
В карточку проекта
Проект дома "Вебер"
Быстрый просмотр
Площадь
277,76
Форма дома
прямоугольной формы
Цена за метр
73 357 ₽/м
2
Быстрый просмотр
277,76
прямоугольной формы
73 357 ₽/м
2
от 20 320 000 ₽
В карточку проекта
Показать еще
1
2
3
...
10
Дом АБС всегда на связи!
Новости со стройки у нас в телеграмме
Telegram
Напишите нам!
Введите текст
Нажимая кнопку "Отправить", Вы принимаете условия
политики конфиденциальности
сайта.
Δ
Напишите нам!
Заказать проект дома, рассчитать стоимость
реализации уже существующего или задать вопрос
Введите текст
Нажимая кнопку "Отправить", Вы принимаете
условия
политики конфиденциальности
сайта.
Δ
Товар добавлен в корзину
0
шт.
цена за шт. -
0
₽
0
₽
0
₽
-0%
Перейти в корзину
Перейти к оформлению
Ошибка добавления в корзину
Выберите свой город
Москва
Архангельск
Саратов
Сочи
Санкт-петербург
Нижний новгород
Сочи
Санкт-петербург
Нижний новгород
Отправить
Выберите язык
RU
UA
FR
EU
OT
RU
RU
UA
FR
EU
OT
RU