Проекты
Услуги
О компании
Контакты
8-800-550-18-92
Консультация
Избранное
Сравнение
Вход
Регистрация
Проекты
Услуги
О компании
Контакты
8-800-550-18-92
+7(926)-693-52-26
dom@abs.ru
Москва, ул. Южнопортовая,
д. 5 / стр. 2, здание 2-4-11
Индекс
115088
Избранное
Сравнение
Вход
Корзина
По типу строения
Дома
Бани
Хозяйственные строения
По назначению
Постоянного проживания
Дачные и садовые
Этажность
Одноэтажные
Двухэтажные
С мансардой
Особенности
С гаражом
С крыльцом
С терассой
С камином
Материалы
Комбинированные
Из бруса
Каркасные дома
Дома из газобетона
Деревянные дома
Стили
Баварский
Кантри
Минимализм
Райт (стиль прерий)
Скандинавский
Шале
Барнхаус
Английский
Хай-тек
Фьюжн
Эклектика
О компании
Группа АБС
Производство
Портфолио
Отзывы
Реквизиты
Интересно знать
Вопрос / ответ
Статьи
Новости
Домопедия
Строительство
Строительство
Зимнее строительство
Подготовка и надзор
Домокомплекты
Клееный брус
Проектирование
Цены на проектирование
Процесс проектирования
Технологии
Финансовые услуги
Кредит
Рассрочка
Страхование
Военная ипотека
Материнский капитал
Связаться с нами
8-800-550-18-92
dom@abs.ru
Индекс
115088
Москва, ул. Южнопортовая,
д. 5 / стр. 2, здание 2-4-11
Москва,
ул. Южнопортовая,
д. 5 / стр. 2, здание 2-4-11
Дачные дома
Каркасные дачные дома
Каркасные дачные дома Форма дома прямоугольной формы - проекты, строительство под ключ
Фильтры
Фильтры
Площадь
Площадь
Выбрано 0
Очистить
30
(1)
50
(3)
60
(1)
80
(2)
90
(6)
100
(1)
120
(2)
150
(3)
210
(1)
250
(1)
270
(1)
310
(1)
320
(1)
Этажей
Этажей
Выбрано 0
Очистить
двухэтажные
(4)
одноэтажные
(7)
полутораэтажные
(12)
трехэтажные
(1)
Стиль
Стиль
Выбрано 0
Очистить
Барнхаус
(13)
Европейский
(1)
Скандинавский
(1)
Фахверк
(2)
Финский
(1)
Эклектика
(1)
Комнат
Комнат
Выбрано 0
Очистить
1
(2)
Количество спален
Количество спален
Выбрано 0
Очистить
1
(5)
2
(10)
3
(2)
4
(4)
5
(2)
Комплектации
Комплектации
Выбрано 0
Очистить
Базовая
(1)
Каркас Технониколь
(13)
Классический каркас
(13)
Форма дома
Форма дома
Выбрано 1
Очистить
прямоугольной формы
квадратной формы
(2)
прямоугольной формы
(24)
С гаражом
С гаражом
Выбрано 0
Очистить
Да
(1)
Форма крыши
Форма крыши
Выбрано 0
Очистить
с двускатной крышей
(21)
с комбинированной крышей
(1)
с односкатной крышей
(1)
с усложнённой крышей
(2)
С мансардой
С мансардой
Выбрано 0
Очистить
Да
(12)
Нет
(2)
Окна
Окна
Выбрано 0
Очистить
большие
(18)
панорамные
(17)
Отделка
Отделка
Выбрано 0
Очистить
имитация бруса
(15)
искусственный камень
(2)
сайдинг
(5)
фасадная штукатурка
(3)
фасадные панели
(13)
Серия
Серия
Выбрано 0
Очистить
Архитектор Карлсон
(8)
Технология
Технология
Выбрано 0
Очистить
каркас Технониколь
(3)
класический каркас
(3)
фахверк
(2)
С террасой
С террасой
Выбрано 0
Очистить
Да
(17)
Для узкого участка
Для узкого участка
Выбрано 0
Очистить
Да
(1)
С антресолью
С антресолью
Выбрано 0
Очистить
Да
(4)
Срок строительства дней
Срок строительства дней
Выбрано 0
Очистить
60
(1)
С двумя входами
С двумя входами
Выбрано 0
Очистить
Да
(9)
С гостиной
С гостиной
Выбрано 0
Очистить
Да
(23)
С жилой комнатой на 1 этаже
С жилой комнатой на 1 этаже
Выбрано 0
Очистить
Да
(23)
С котельной
С котельной
Выбрано 0
Очистить
Да
(10)
С крыльцом
С крыльцом
Выбрано 0
Очистить
Да
(12)
С кухней
С кухней
Выбрано 0
Очистить
Да
(3)
С навесом для авто
С навесом для авто
Выбрано 0
Очистить
Да
(1)
С печкой
С печкой
Выбрано 0
Очистить
Да
(2)
С сауной
С сауной
Выбрано 0
Очистить
Да
(2)
Со вторым светом
Со вторым светом
Выбрано 0
Очистить
Да
(8)
Длина
Длина
Выбрано 0
Очистить
3
(1)
6
(1)
9
(3)
9.3
(1)
12
(1)
12.3
(1)
13
(1)
Ширина
Ширина
Выбрано 0
Очистить
5
(1)
6
(2)
7
(2)
8
(1)
8.5
(1)
9
(1)
14
(1)
Площадь кухни ≈
Площадь кухни ≈
Выбрано 0
Очистить
9,16
(1)
10
(1)
Жилая площадь ≈
Жилая площадь ≈
Выбрано 0
Очистить
30
(1)
114,44
(1)
Габариты
Габариты
Выбрано 0
Очистить
14 на 9
(1)
3 на 5
(1)
6 на 7
(1)
6 на 9
(2)
7 на 10
(1)
8 на 13
(1)
9 на 12
(2)
Все фильтры
Сбросить фильтры
Количество позиций:
24 шт.
Выбрано:
Форма дома - прямоугольной формы
Сортировка:
По умолчанию
По умолчанию
Цена
Цена
Сортировка:
По умолчанию
По умолчанию
Цена
Цена
Выдача по:
20
60
50
40
30
20
10
5
1
2
Наименование
Артикул
Форма дома
Цена за метр
Цена
Количество
В корзину
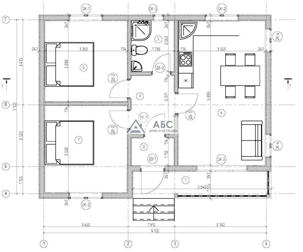
Проект дома "Блэквуд"
Быстрый просмотр
Площадь
85,6
Форма дома
прямоугольной формы
Цена за метр
60 118 ₽/м
2
Быстрый просмотр
85,6
прямоугольной формы
60 118 ₽/м
2
от 5 110 000 ₽
В карточку проекта
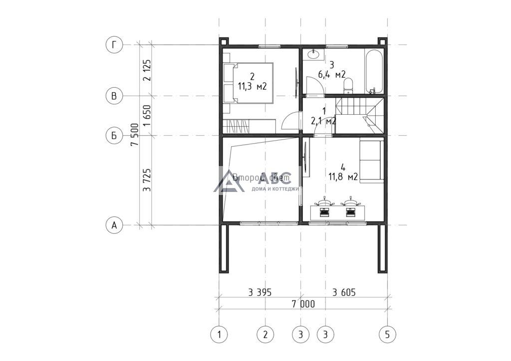
Проект дома "Шемблз"
Быстрый просмотр
Площадь
93,2
Форма дома
прямоугольной формы
Цена за метр
59 828 ₽/м
2
Быстрый просмотр
93,2
прямоугольной формы
59 828 ₽/м
2
от 5 564 000 ₽
В карточку проекта
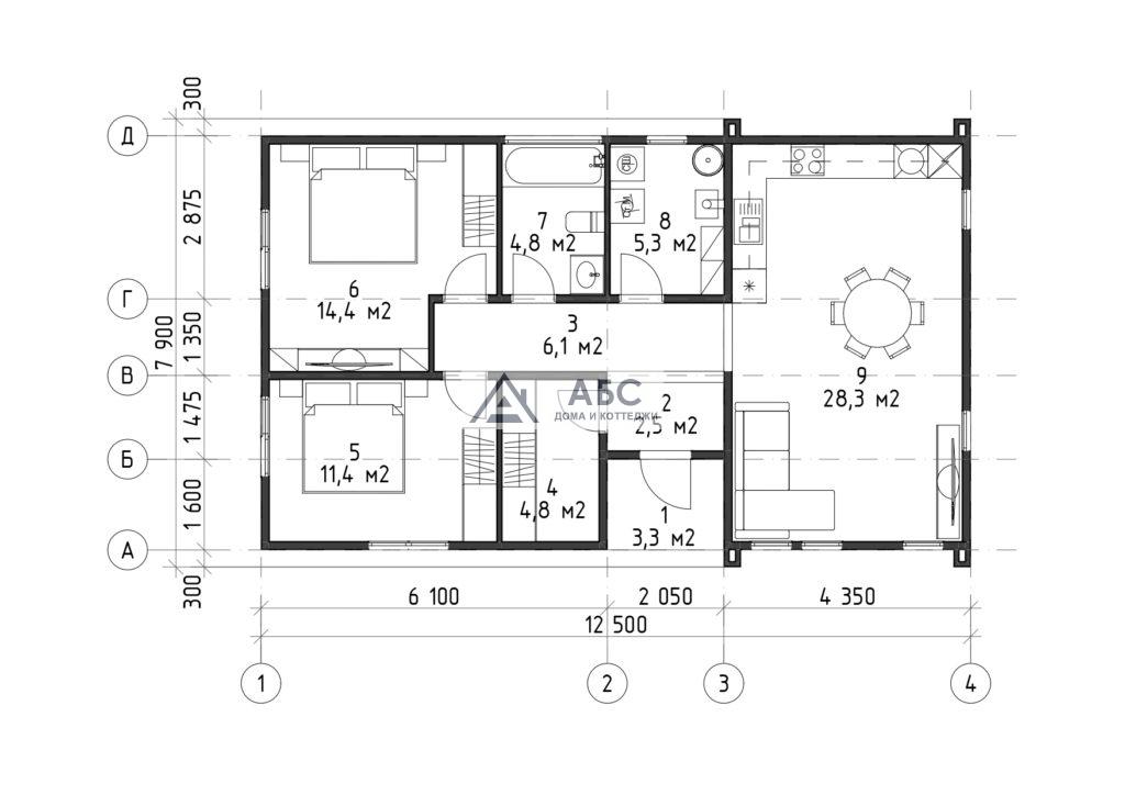
Проект дома "Харпер"
Быстрый просмотр
Площадь
122,8
Форма дома
прямоугольной формы
Цена за метр
60 090 ₽/м
2
Быстрый просмотр
122,8
прямоугольной формы
60 090 ₽/м
2
от 7 331 000 ₽
В карточку проекта
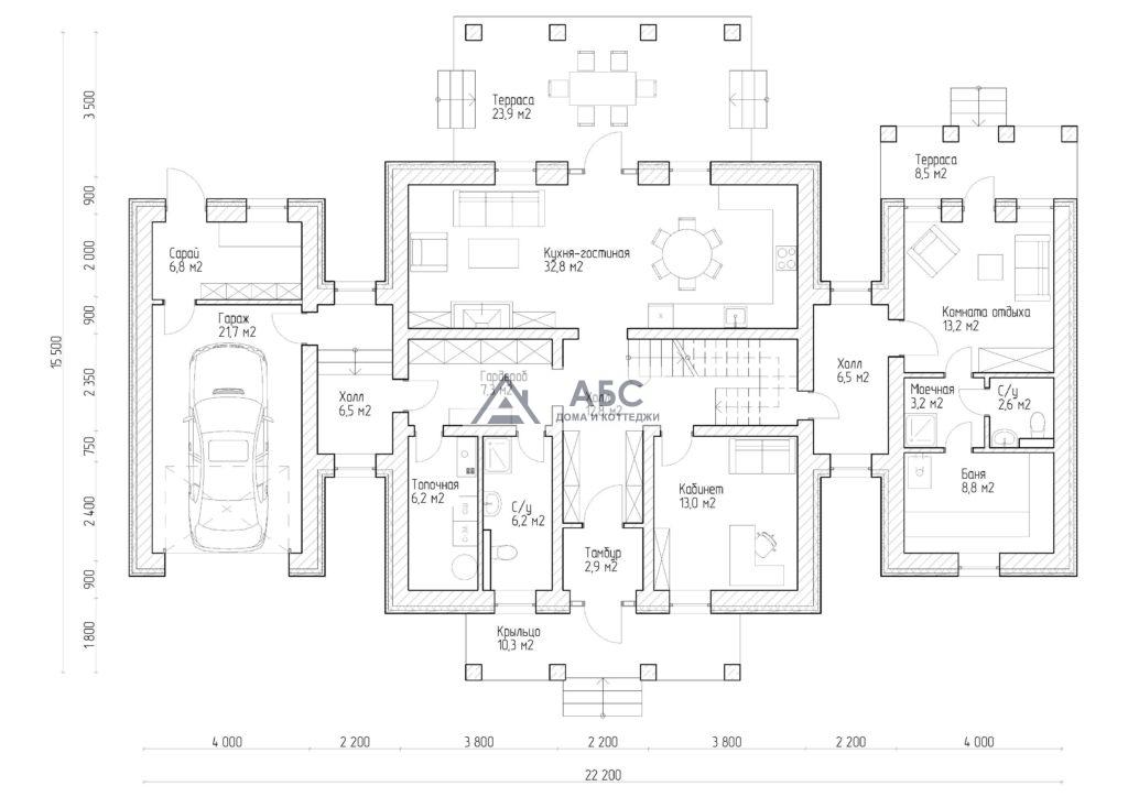
Проект дома "Баллард"
Быстрый просмотр
Площадь
221,33
Форма дома
прямоугольной формы
Цена за метр
По запросу
Быстрый просмотр
221,33
прямоугольной формы
По запросу
По запросу
В карточку проекта
Проект дома "Бангор"
Быстрый просмотр
Площадь
95,9
Форма дома
прямоугольной формы
Цена за метр
60 263 ₽/м
2
Быстрый просмотр
95,9
прямоугольной формы
60 263 ₽/м
2
от 5 725 000 ₽
В карточку проекта
Проект дома "Бафф"
Быстрый просмотр
Площадь
205,11
Форма дома
прямоугольной формы
Цена за метр
По запросу
Быстрый просмотр
205,11
прямоугольной формы
По запросу
По запросу
В карточку проекта
Проект дома "Бонн"
Быстрый просмотр
Площадь
149,16
Форма дома
прямоугольной формы
Цена за метр
По запросу
Быстрый просмотр
149,16
прямоугольной формы
По запросу
По запросу
В карточку проекта
Проект дома "Брайтон"
Быстрый просмотр
Площадь
90,2
Форма дома
прямоугольной формы
Цена за метр
59 833 ₽/м
2
Быстрый просмотр
90,2
прямоугольной формы
59 833 ₽/м
2
от 5 385 000 ₽
В карточку проекта
Проект дома "Бьюфорд"
Быстрый просмотр
Площадь
49,1
Форма дома
прямоугольной формы
Цена за метр
59 822 ₽/м
2
Быстрый просмотр
49,1
прямоугольной формы
59 822 ₽/м
2
от 2 931 300 ₽
В карточку проекта
Проект дома "Дункан"
Быстрый просмотр
Площадь
307,61
Форма дома
прямоугольной формы
Цена за метр
По запросу
Быстрый просмотр
307,61
прямоугольной формы
По запросу
По запросу
В карточку проекта
Проект дома "Карлайл"
Быстрый просмотр
Площадь
147,4
Форма дома
прямоугольной формы
Цена за метр
59 863 ₽/м
2
Быстрый просмотр
147,4
прямоугольной формы
59 863 ₽/м
2
от 8 799 800 ₽
В карточку проекта
Проект дома "Лестер"
Быстрый просмотр
Площадь
75,8
Форма дома
прямоугольной формы
Цена за метр
60 337 ₽/м
2
Быстрый просмотр
75,8
прямоугольной формы
60 337 ₽/м
2
от 4 525 300 ₽
В карточку проекта
Проект дома "Лисберн"
Быстрый просмотр
Площадь
80,9
Форма дома
прямоугольной формы
Цена за метр
60 371 ₽/м
2
Быстрый просмотр
80,9
прямоугольной формы
60 371 ₽/м
2
от 4 829 700 ₽
В карточку проекта
Проект дома "Маркус"
Быстрый просмотр
Площадь
94,8
Форма дома
прямоугольной формы
Цена за метр
60 209 ₽/м
2
Быстрый просмотр
94,8
прямоугольной формы
60 209 ₽/м
2
от 5 659 600 ₽
В карточку проекта
Проект дома "Одноклассница"
Быстрый просмотр
Площадь
60
Форма дома
прямоугольной формы
Цена за метр
75 000 ₽/м
2
Быстрый просмотр
60
прямоугольной формы
75 000 ₽/м
2
от 4 500 000 ₽
В карточку проекта
Проект дома "Престон"
Быстрый просмотр
Площадь
54,6
Форма дома
прямоугольной формы
Цена за метр
60 363 ₽/м
2
Быстрый просмотр
54,6
прямоугольной формы
60 363 ₽/м
2
от 3 259 600 ₽
В карточку проекта
Проект дома "Роуби"
Быстрый просмотр
Площадь
153,24
Форма дома
прямоугольной формы
Цена за метр
По запросу
Быстрый просмотр
153,24
прямоугольной формы
По запросу
По запросу
В карточку проекта
Проект дома "Стейн"
Быстрый просмотр
Площадь
269,5
Форма дома
прямоугольной формы
Цена за метр
По запросу
Быстрый просмотр
269,5
прямоугольной формы
По запросу
По запросу
В карточку проекта
Проект дома "Тейт"
Быстрый просмотр
Площадь
315,6
Форма дома
прямоугольной формы
Цена за метр
По запросу
Быстрый просмотр
315,6
прямоугольной формы
По запросу
По запросу
В карточку проекта
Проект дома "Фостер"
Быстрый просмотр
Площадь
94,5
Форма дома
прямоугольной формы
Цена за метр
60 018 ₽/м
2
Быстрый просмотр
94,5
прямоугольной формы
60 018 ₽/м
2
от 5 641 700 ₽
В карточку проекта
Показать еще
1
2
Дом АБС всегда на связи!
Новости со стройки у нас в телеграмме
Telegram
Напишите нам!
Введите текст
Нажимая кнопку "Отправить", Вы принимаете условия
политики конфиденциальности
сайта.
Δ
Напишите нам!
Заказать проект дома, рассчитать стоимость
реализации уже существующего или задать вопрос
Введите текст
Нажимая кнопку "Отправить", Вы принимаете
условия
политики конфиденциальности
сайта.
Δ
Товар добавлен в корзину
0
шт.
цена за шт. -
0
₽
0
₽
0
₽
-0%
Перейти в корзину
Перейти к оформлению
Ошибка добавления в корзину
Выберите свой город
Москва
Архангельск
Саратов
Сочи
Санкт-петербург
Нижний новгород
Сочи
Санкт-петербург
Нижний новгород
Отправить
Выберите язык
RU
UA
FR
EU
OT
RU
RU
UA
FR
EU
OT
RU